2011 Köln

Licht + Kunst am CECAD der Uniklinik Köln

Köln Uniklinik CECAD

Wettbewerb
1. Platz

Auslober
Uniklinik Köln, vertreten durch: medfacilities GmbH

Künstler
Yoshiyuki Miura

Visualisierungen
DAY & LIGHT

Zeitraum
2013

Projektteam DAY & LIGHT
Frank Vetter

Yoshiyuki Miura + DAY & LIGHT

Auf beiden Seiten des CECAD Neubaus entlang des Studentenweges ist jeweils eine scheinbar transparente, schwebende, leuchtende Kugel im überdachten Bereich des Weges sichtbar. Diese Kugeln zu beiden Seiten markieren deutlich Ein- und Ausgang des Gebäudes, erscheinen aber ähnlich einem Hologramm nahezu entmaterialisiert und können visuell nicht eindeutig erfasst werden. Erst beim Näherkommen wird deutlich, dass die Kugeln aus einer Vielzahl von Stäben bestehen, die durch ihre Farbigkeit eine dreidimensionale Form definieren. Kontrastreich hebt sich die Form gegen den dahinterliegenden, überdachten Bereich ab und strahlt wie eine Sonne einen Lichtfleck auf den Boden, der gleichermaßen die Eingangssituation markiert.
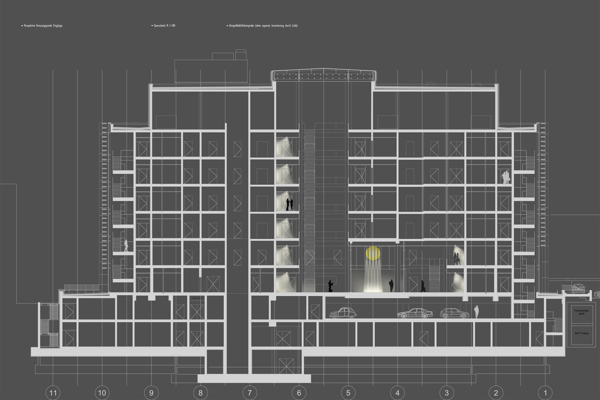
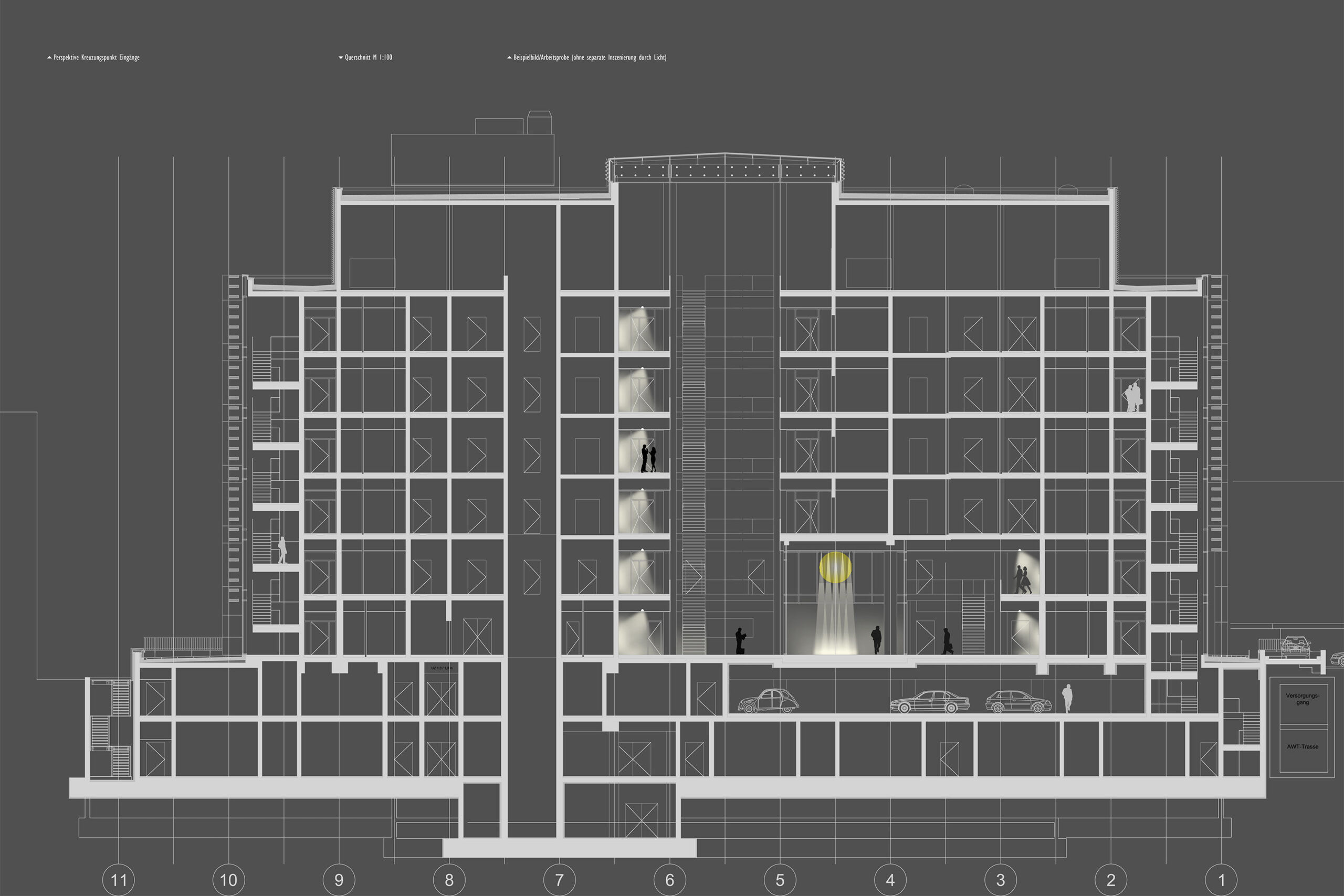
Im zentralen Kreuzungspunkt des Inneren schwebt eine weitere Kugel, welche sich lediglich durch ihre Farbigkeit unterscheidet. Besonders hier in dem Bereich, der am geringsten vom Tageslicht erreicht wird, entfaltet die Kugel besonders stark ihre leuchtende Wirkung und prägt den Raum.
Sobald Wind durch die Wegdurchführung weht, geraten die Objekte in sich leicht in Bewegung und machen dies besonders durch die Licht- und Schattenbildung darunter spürbar.

Zellen | Die Kugel als mathematische Idealform kommt in der Natur nicht vor. Es gibt nur angenäherte Formen, die kleine oder große Abweichungen vorweisen. Die Kugel hier symbolisiert eine einzelne Zelle und besteht mit Ihren Stäben gleichermaßen aus vielen kleinen Bestandteilen, die in ihrer Bewegung ständige Veränderungen aufzeigen. Komplett bilden sie jedoch stets die komplette Form. Durch seine Transparenz und strukturelle Zusammensetzung soll sich dieses Objekt als Symbol der Molekularforschung präsentieren.

Raumwahrnehmung | Die drei Kugeln im Durchgang des Studentenweges prägen charakterlich den Raum. Sie kommen besonders durch klare Kontraste, vor allem gegen die sonst relativ dunkle Decke, zur Geltung. Trotzdem sollte der Raum nicht durch seine Dunkelheit abschreckend wirken sondern auch positiv erfahrbar sein. Dazu wird das bestehende Beleuchtungskonzept an wenigen Stellen geringfügig angepasst:
Um die Schwellenangst beim Betreten des überdachten Bereiches zu nehmen, wird die geschlossene, seitliche Wand aus der Decke angestrahlt. Die höhere Leuchtdichte weitet den Raum. Gleichermaßen wird der starke Leuchtdichteunterschied der Lichtflecken auf dem Boden relativiert.
Im Bereich zwischen den Gebäudeeingängen werden weiterhin Einbaudownlights verwendet. Diese sollten jedoch gut entblendet sein und nicht durch ihre hohe Eigenleuchtdichte auffallen. Dazu werden Downlights ohne satinierte Abdeckung eingesetzt.
Um den Raum in beide Eingangshallen hinein zu weiten, muss die Transparenz verbessert und die Scheibenspiegelung aufgehoben werden. Dies wird am besten durch Aufhellung der mittleren Wandflächen hinter den Treppen erreicht. Im bestehenden Beleuchtungskonzept ist dies durch zwei Wandfluter je Etage bereits vorgesehen. Um dies gleichmäßiger und intensiver zu gestalten sollten hier mehr Wandfluter mit verbesserter Lichtverteilung eingesetzt werden.

GALERIE

ÄHNLICHE PROJEKTE